
图1 讲座现场照片
4月7日下午,同济大学建筑学硕士、华东院主创建筑师程泽西“西西学长”应邀来到亚洲情色
,为2021级和2022级建筑类专业的师生分享了“建筑快题的核心思维模型”专题讲座,从“设计认知与价值观”的角度指导学生如何开展建筑类专业低年级的学习和基础知识体系的搭建。

图2 西西学长历年快题设计成果展示
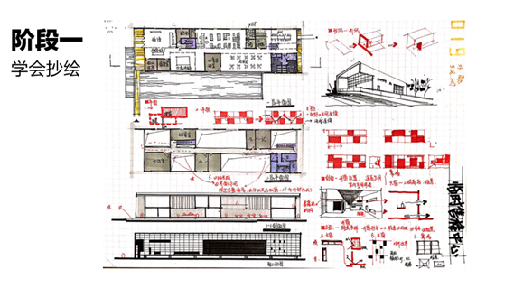
西西学长提出建筑快题设计的的本质还是建筑设计,培养正确的设计观是提升设计能力的根本。只有在上层设计观的统领下,策略、造型、空间、平面之间才能相互印证,进而形成清晰的设计思路。结合建筑类专业同学们目前所处的学习阶段,西西学长给同学们分享了案例抄绘六阶段的学习方法体系:阶段一:学会抄绘;阶段二:学会分类;阶段三:学会提炼;阶段四:学会总结;阶段五:学会思考;阶段六:学会更新。案例抄绘的学习方法体系层次清晰,各个阶段抄绘的内容详细明确,非常易于同学们理解和掌握。最后西西学长还分享了他的抄绘心得:1案例抄绘的最终结果是一张分析图,在脑海中留下的也应是一张分析图。因为这样便于提取。案例抄绘的最终目标是灵活应用,在最终图纸中留下的也是一张分析图。因为这样便于思考。2抄绘的过程是浓缩精华的过程,浓缩成各种“口味”的精华,遇到不同的水和人它便变成不同的“饮品”。每个案例都各有所长,我们也要各取所需。3不要急于求成,相信时间的力量。通过自身的经历和经验来帮助同学们在专业课的学习中快速成长,少走弯路。


图3 西西学长建筑抄绘阶段一成果展示
此次讲座激发了同学们学习的热情,也为同学们去学习和搭建自己的专业基础知识体系提供了一个明确的思路和方向,为学院学风建设打下了坚实的基础。